Implantation d’un magasin Vilebrequin (maillots de bain haut de luxe) à Antibes.
Dépose de l’existant, soit : façade, sol, doublage, électricité, faux plafond, accès à l’étage.
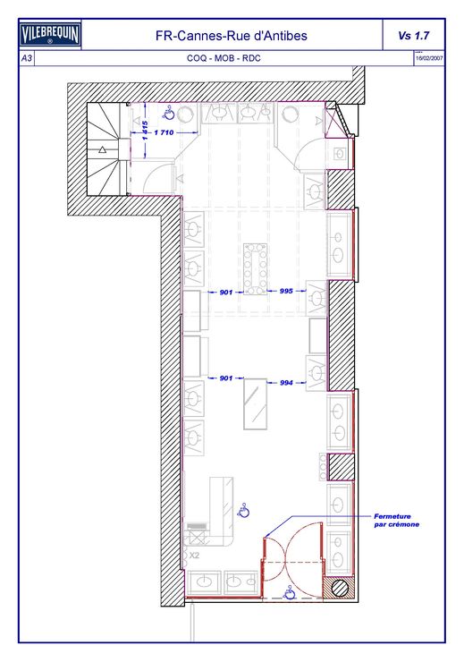
Actualisation du concept défini avec le client, avec une finition noire.












Implantation d’un magasin Vilebrequin (maillots de bain haut de luxe) à Antibes.
Dépose de l’existant, soit : façade, sol, doublage, électricité, faux plafond, accès à l’étage.
Actualisation du concept défini avec le client, avec une finition noire.











